AutoCAD Drafting & MEP Revit Modelling
Permit-ready and construction-level 2D drawing sets - from legacy conversion to fully detailed as-built documentation.
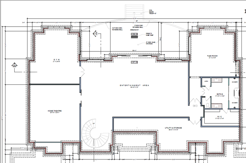
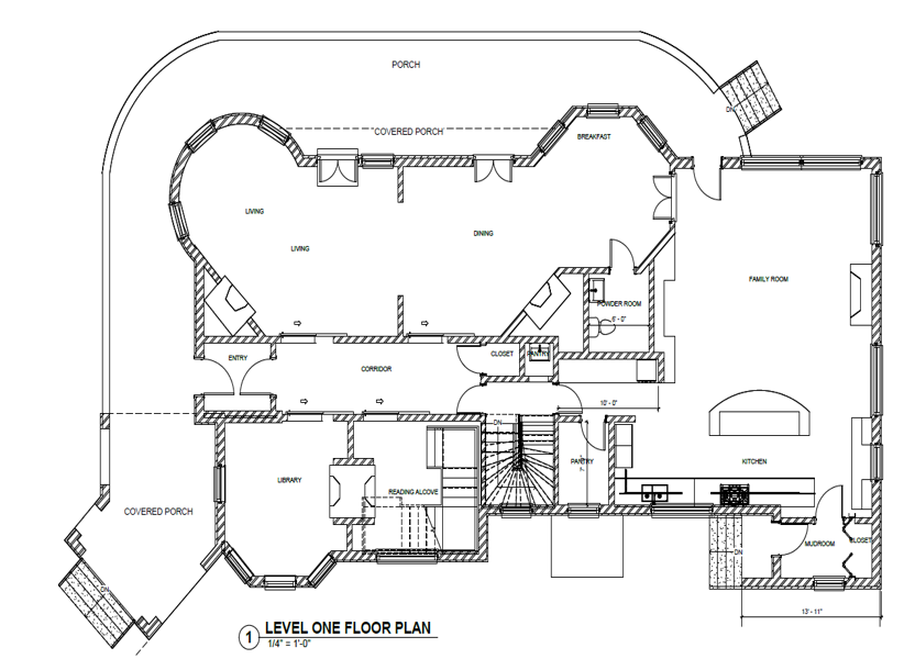
Precision 2D Drawing Sets
Every drawing set is production-ready, accurately layered, and formatted to your firm's standards - delivered overnight.
Permit-Ready Drawing Sets
Construction-level 2D plans, elevations, sections and details for AHJ submission.
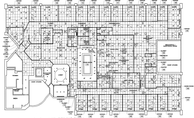
MEP Construction Details
Detailed mechanical, electrical and plumbing construction details and schedules.
Redline Mark-Up Incorporation
Fast turnaround on redlines, review comments and design revisions.
Legacy Drawing Conversion
Accurate CAD conversion from PDFs, hand sketches, and old DWG files.






How We Work
Source File Review
We receive your PDFs, sketches, or legacy DWGs and confirm scope.
Draft & Detail
Accurate 2D drafting to your layer standards, title block and sheet format.
Redline Integration
All mark-ups and revisions incorporated with full revision tracking.
Overnight Delivery
DWG, PDF, and any requested format ready the next morning.
Software & Deliverable Formats
Ready to Get Started?
Tell us about your project and we'll respond within 24 hours. No commitment required.