MEP Engineering Support
Mechanical, Electrical, Plumbing & Fire Fighting design sets — permit-ready and compliant with NEC, IMC, IPC, UPC, and local AHJ requirements.
Get a Free Quote →Code-Compliant MEP Design Sets
We produce fully coordinated MEP documentation for residential and commercial projects — schematics, risers, load calculations and permit sets all included.
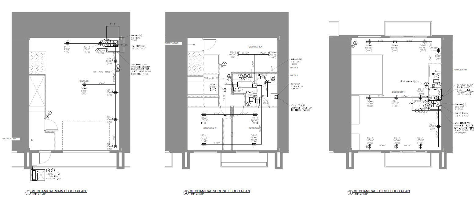
Mechanical (HVAC) Design
Equipment schedules, duct layouts, load calculations compliant with IMC.
Electrical Design
Single-line diagrams, panel schedules, load calculations aligned to NEC.
Plumbing & Fire Fighting
Plumbing riser diagrams, fixture schedules, and fire suppression layouts per IPC/UPC.
Coordinated Plans & Schedules
Fully coordinated MEP plans, schematics, risers, and equipment schedules.



How We Work
Scope & Code Confirm
We confirm project location, AHJ requirements, and applicable codes before starting.
Design & Model
MEP systems designed and modeled in Revit MEP or AutoCAD per your template.
Coordination Check
Clash-free coordination between Mechanical, Electrical, and Plumbing systems.
Permit-Ready Delivery
Complete permit set — plans, schedules, risers and calculations — delivered overnight.
Software & Deliverable Formats
Ready to Get Started?
Tell us about your project and we'll respond within 24 hours. No commitment required.